Terug naar overzicht

Ref. A12004-46C

Nieuwbouw woning

Deze ruime nieuwbouwwoning, ontworpen door Project Architects, biedt biedt de mogelijkheid tot de uitoefening van een vrij beroep of kantoor op het gelijkvloers.

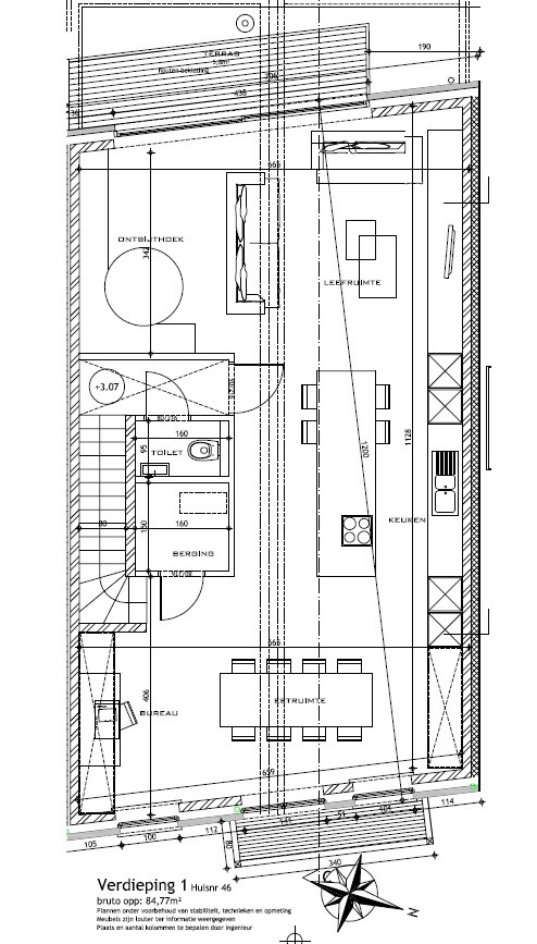
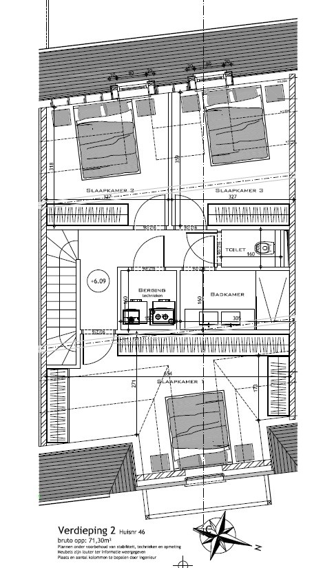
De casco woning omvat onder andere een ruime, brede leefruimte, vier slaapkamers, tuin, twee zonneterrassen en een polyvalente ruimte met apart toilet op het gelijkvloers.

De afwerking is volledig naar eigen smaak te bepalen, waardoor u van deze woning een echte thuis kunt maken. Bovendien ligt de woning op een toplocatie, dicht bij alle commerciële voorzieningen. Een unieke kans voor wie modern en praktisch wil wonen!

Mogelijkheid tot aankoop van twee ruime garageboxen.

Bekijk de video op www.avantimmo.be

Bezoeken? Graag na afspraak met Avantimmo op het nummer 050 62 50 55


€ 570.000

Bouwjaar
2025
Beschikbaar
Bij akte

EPC ref.
nieuwbouw epb

Prijs
€ 570.000

Overstromingsgevoeligheid
Geen overstromingsgevoelig gebied
G(ebouw)-score info
C
P(erceel)-score info
C
Stedenbouwkundige bestemming
Woongebied
Dagvaarding voor stedenbouwkundige overtreding
Niet ingegeven
Bouwvergunning
Bouw vergund
Verkavelingsvergunning
Niet ingegeven
Voorkooprecht
Neen
Beschermd erfgoed
Neen
Geïnventariseerd erfgoed
Geen beschermd erfgoed
Renovatieplicht
Nee

Gelijkvloers

Woonkamer

Keuken

4x Slaapkamer

3x WC

Bureau

Terras

2x Garage

Tuin

Neem contact op met

Pieter

Gsm nr.: 0497 16 70 04

E-mail: pieter@avantimmo.be

Comfort

Aardgas

Riolering

Stadswater